RIF. 005
In evidenzaDescrizione
SI VENDE Porzione di baita ristrutturata in località Refavaie, poco sopra all’omonimo rifugio, a un’altitudine di circa 1150m. Si raggiunge da strada comunale e poi privata, che dal rifugio sale verso destra. Immersa nel verde della Valle del Vanoi, la proprietà gode di un clima perfetto in estate e di nevicate sporadiche in inverno. Si trova in una posizione panoramica e molto soleggiata. L’ideale per godere dell’atmosfera rustica e silenziosa di montagna, ma in un’abitazione recentemente ristrutturata che garantisce tutte le comodità di uno chalet elegante e moderno.
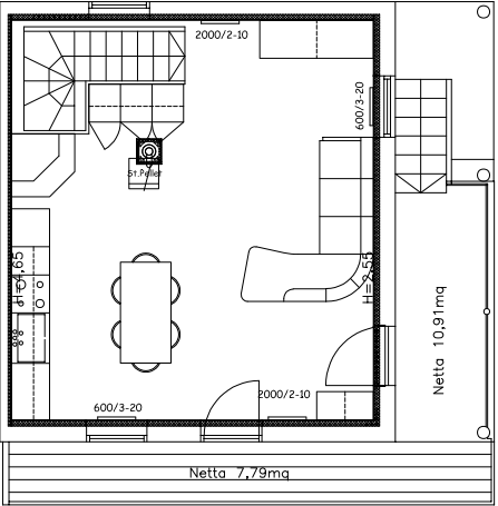
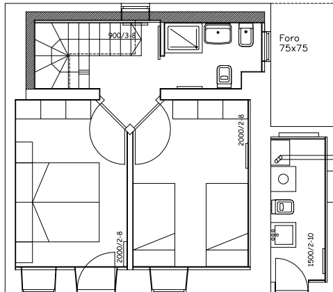
L’immobile si sviluppa su due piani e comprende: cucina con ampio soggiorno a primo piano, con soppalco utile come deposito o anche per aggiungere un paio di posti letto. La zona notte vera e propria si trova invece a piano terra: due camere da letto matrimoniali e bagno, lavanderia con accesso autonomo dove si trova la caldaia a gas, nuova del 2021. Nel soggiorno invece si trova anche una stufa a pellet, che aggiungendosi al sistema di riscaldamento a gas garantisce la piena e gradevole vivibilità degli ambienti anche d’inverno.
Serramenti in doppio vetro con infissi in PVC.
Sono già installati gli impianti elettrico, con contatore proprio, e idraulico, con allaccio all’acquedotto comunale. La fognatura è presente con fossa biologica privata.
La proprietà comprende inoltre una porzione della stalla-fienile antistante, anch’essa sviluppata su due piani per una superficie complessiva di 74mq; gode ugualmente di un terreno scoperto a prato e a bosco per totali 9338mq. Ideale per approfittare della natura rigogliosa ricca della flora e fauna alpina. Da Refavaie partono inoltre numerosissime passeggiate che esplorano la catena del Lagorai, il massiccio della Cima d’Asta o la cima erbosa dei Paradisi. La montagna in tutto il suo splendore!
Dettagli
-
Riferimento:005
-
Superficie edificio:110 m²
-
Superficie terreno:9338 m²
-
Stanze totali:5
-
Camere da letto:2
-
Bagni:1
-
Prezzo:€340000
-
Anno di costruzione:2013
-
Contratto:
Dotazioni
- Cantina
- Giardino
- Magazzino
- Posto auto esterno
- Riscaldamento GPL
- Stufa a pellet
- Terreno a bosco
- Terreno a prato






