RIF. 171
In evidenzaDescrizione
SI VENDE appartamento a piano terra in fase di ristrutturazione integrale in via Don Nicoletti a Transacqua, in pieno centro storico. Immersa nello stile di vita paesano primierotto, questa abitazione è l’ideale per godersi la serenità della nostra valle trovando tutti i servizi principali nelle immediate prossimità.
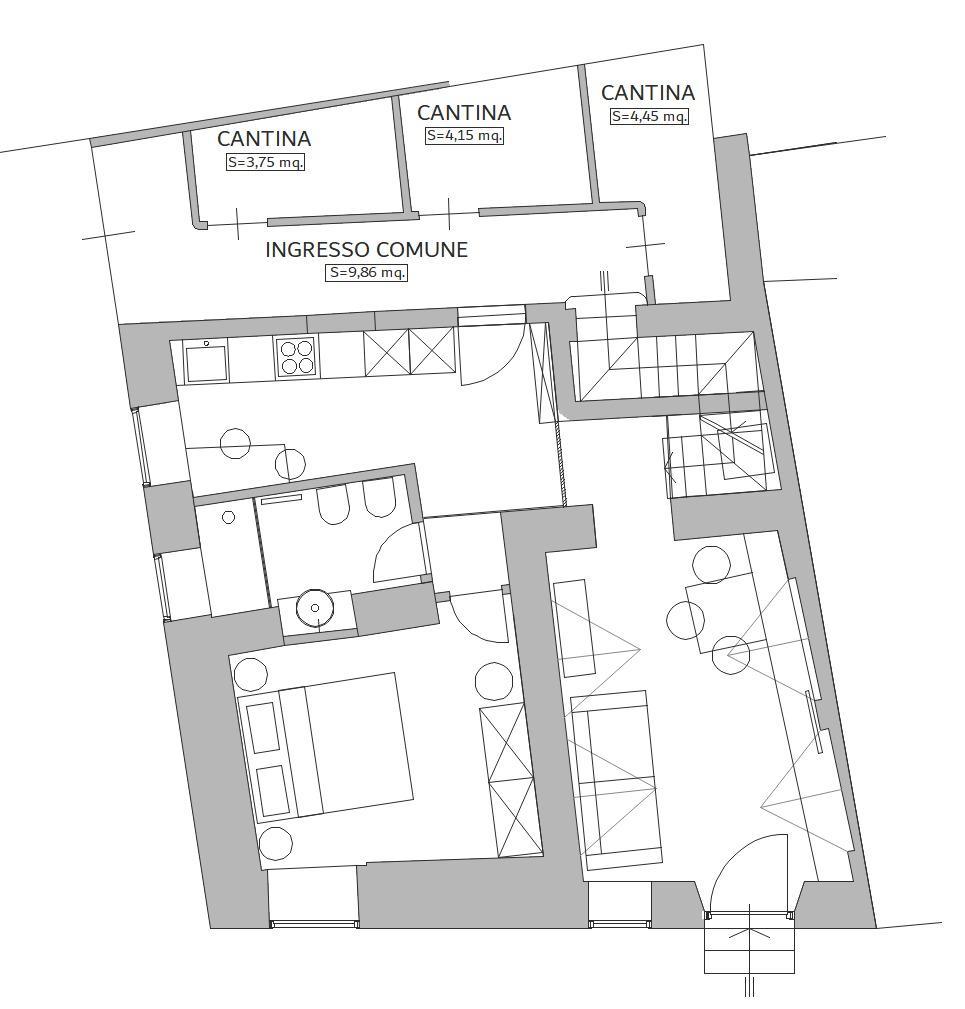
L’appartamento misura 54mq commerciali e comprende zona cucina, soggiorno, una stanza da letto matrimoniale, un bagno e cantina. Tutti i locali abitabili sono finestrati, garantendo una buona luminosità e arieggiatura agli spazi.
Gli ambienti saranno riscaldati e rinfrescati da pompa di calore con impianto di riscaldamento a pavimento; sarà effettuata la predisposizione al teleriscaldamento e anche per una canna fumaria, così da poter installare una stufa a legna o pellet. La proprietà sarà inoltre provvista di pannelli fotovoltaici per assicurare un buon apporto di energia pulita all’immobile.
L’immobile sarà perfettamente isolato da un cappotto. Anche le finestre in triplo vetro contribuiranno a garantirne l’efficienza energetica fino a far meritare alla struttura almeno la classe B.
Le finiture in legno dell’appartamento creano un’atmosfera calorosa e tradizionale che si sposa a meraviglia con il contesto paesano e rustico trentino, pur mantenendo ottimi standard di modernità e comodità.
L’appartamento sarà pronto ad essere visitato a partire da marzo 2026 e abitabile, non arredato, approssimativamente dall’estate 2026.
Classe Energetica
Dettagli
-
Riferimento:171
-
Superficie edificio:54 m²
-
Stanze totali:5
-
Camere da letto:1
-
Bagni:1
-
Prezzo:€220000
-
Anno di costruzione:2025
-
Contratto:
Dotazioni
- Cantina
- Riscaldamento a pavimento
- Riscaldamento a pompa di calore
- Teleriscaldamento




